大厦名称:卓越世纪中心4号楼 | 装修:精装修 | 朝向:东北向 |
出租面积:339平米 | 管理费:20.65/平米/月 | 空调:计流量 |
出租单价:98/平米/月 | 出租总价:33222/月 | 发布时间:2025/07/12 |
大厦地址:深圳市福田区福田街道福山社区金田路2030号 低区 | 联系电话:0755-61967921 | |
卓越世纪中心4号楼 出租单价:98元/平米/月 地铁1号线(罗宝线) 地铁4号线(龙华线) 会展中心站
大厦名称:卓越世纪中心4号楼
楼高:185米
层数:38层
管理费:18元/平米/月
空调费:计流量
洗手间:配套公共洗手间
大堂层高:15.5米
物业公司:卓越物业管理公司
入伙时间:2010年02月
出租面积:339平米
出租单价:98元/平米/月
出租总价:33222元/月
出租朝向:东北向
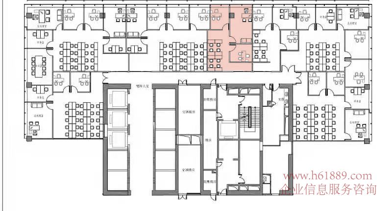
出租户型:5个办公室、一个厅
出租楼层:低区
租售电话:400 7165 112
物业地址:深圳市福田区福田街道福山社区金田路2030号
卓越世纪中心4号楼租售中心 卓越世纪中心4号楼简介
入伙时间:2010年02月
楼层:38层
高度:185米
空调:计流量
管理费:18元/平米/月
出售均价:4.2万/平米
出租租价:面议
卓越世纪中心4号楼
卓越世纪中心4号楼租售中心:400 7165 112
租售状况:精装修:豪华装修:空房:全办公家私:毛坯:任意选择
租售面积:116平米、126平米、165平米、189平米、238平米、260平米、299平米、326平米、410平米、428平米、198平米、525平米、550平米、658平米、750平米、890平米、972平米、1100平米、1900平米
开发商:卓越集团
物业公司:卓越物业管理公司
物业地址:深圳市福田区福田街道福山社区金田路2030号
结构层数:地上38层,地下共3层(其中16楼和31楼为避难层,1-3楼为商业,4楼为架空层)
4号楼为甲级写字楼、共38层、1-4层为商业裙楼、5-34为写字楼、35-38层为复式办公、楼高185米、标准层面积约1940M2、每层10个单位、复式每层4个单位
卓越世纪中心4号楼、纯正甲级写字楼、总建筑面积:64428.6平方米、高度:185.5米、38层、标准层面积:1940平方米、每层10个单位、面积类型:72平米、77平米、176平米、178平米、268平米、349平方米(套内面积)、层高4米(吊顶高度3.3米)、分低区(5-14F)、中区(17-29F)、高区(32-34F)、高区复式(35-38F)4个区域
高级配置:引领时代办公标准,人性化、舒适、健康、美感的办公空间,符合现代企业要求。标准层层高4米、复式层高8米,实用率66%;建筑立面形体美感和标识性、15.5米高挑空大堂,有效分流高峰人流;、原装三菱高速电梯、核心筒布局方正实用、XXL办公空间尺度、国际先进的冰蓄冷VAV空调,可分户计量;、入户挑空大堂、10CM网络架空地板,自由布局办公网络;特设总裁VIP洗手间、周密智能化管理系统、隔音隔热抗辐射双银LOW-E玻璃
卓越世纪中心周边配套
市政:市民中心、会展中心、深交所、音乐厅、少年宫、图书馆、书城、莲花山、水晶岛、中心城、购物公园,COCOPARK等
酒店:马可波罗好日子大酒店、喜来登大酒店、香格里拉大酒、店,尔顿大酒店等五星级酒店;
餐饮:俏江南、顺记、胜记酒楼,潮泰轩等;
银行:所有银行
交通:双口岸、三条地铁线、广深港城际高铁福田站、 距深圳机场仅30分钟;距香港仅20分钟;距新福田口岸、皇冈口岸10分钟车程;距蛇口港30分钟
卓越世纪中心交通情况
地铁:会展中心站:地铁1号线(罗宝线) 、地铁4号线(龙华线)
公交车站:会展中心东:34路、63路、n10路
公交车站:福华三路口:车次:33路、34路、50路、60路、62路、76区间线、80路、103b短线、103b线、371路、 k113路、m347路、 m390路、n9路、高峰专线14路
公交车站:财富大厦:车次:80路、103b短线、103b线、121路
公交车站:福华三路口:车次:33路、34路、50路、60路、62路、76区间线、80路、103b短线、103b线、371路、 k113路、m347路、 m390路、n9路、高峰专线14路
公交车站:财富大厦:车次:80路、103b短线、103b线、121路
卓越世纪中心4号楼 地铁1号线(罗宝线) 地铁4号线(龙华线) 会展中心站 户型图片

卓越世纪中心4号楼 地铁1号线(罗宝线) 地铁4号线(龙华线) 会展中心站 装修图片

卓越世纪中心4号楼 地铁1号线(罗宝线) 地铁4号线(龙华线) 会展中心站 装修图片

卓越世纪中心4号楼 地铁1号线(罗宝线) 地铁4号线(龙华线) 会展中心站 装修图片

卓越世纪中心4号楼 地铁1号线(罗宝线) 地铁4号线(龙华线) 会展中心站 装修图片

卓越世纪中心4号楼 地铁1号线(罗宝线) 地铁4号线(龙华线) 会展中心站 装修图片

卓越世纪中心4号楼 地铁1号线(罗宝线) 地铁4号线(龙华线) 会展中心站 装修图片

卓越世纪中心4号楼 地铁1号线(罗宝线) 地铁4号线(龙华线) 会展中心站 户型图片

卓越世纪中心4号楼 地铁1号线(罗宝线) 地铁4号线(龙华线) 会展中心站 装修图片

卓越世纪中心4号楼 地铁1号线(罗宝线) 地铁4号线(龙华线) 会展中心站 装修图片

卓越世纪中心4号楼 地铁1号线(罗宝线) 地铁4号线(龙华线) 会展中心站 装修图片

卓越世纪中心4号楼 地铁1号线(罗宝线) 地铁4号线(龙华线) 会展中心站 装修图片

卓越世纪中心4号楼 地铁1号线(罗宝线) 地铁4号线(龙华线) 会展中心站 装修图片

卓越世纪中心4号楼 地铁1号线(罗宝线) 地铁4号线(龙华线) 会展中心站 装修图片

卓越世纪中心4号楼 地铁1号线(罗宝线) 地铁4号线(龙华线) 会展中心站 装修图片

卓越世纪中心4号楼 地铁1号线(罗宝线) 地铁4号线(龙华线) 会展中心站 装修图片

卓越世纪中心4号楼 地铁1号线(罗宝线) 地铁4号线(龙华线) 会展中心站 装修图片

卓越世纪中心4号楼 地铁1号线(罗宝线) 地铁4号线(龙华线) 会展中心站 装修图片

卓越世纪中心4号楼 地铁1号线(罗宝线) 地铁4号线(龙华线) 会展中心站 户型图片

卓越世纪中心4号楼 地铁1号线(罗宝线) 地铁4号线(龙华线) 会展中心站 装修图片

卓越世纪中心4号楼 地铁1号线(罗宝线) 地铁4号线(龙华线) 会展中心站 装修图片

卓越世纪中心4号楼 地铁1号线(罗宝线) 地铁4号线(龙华线) 会展中心站 装修图片

卓越世纪中心4号楼 地铁1号线(罗宝线) 地铁4号线(龙华线) 会展中心站 装修图片

卓越世纪中心4号楼 地铁1号线(罗宝线) 地铁4号线(龙华线) 会展中心站 装修图片

卓越世纪中心4号楼 地铁1号线(罗宝线) 地铁4号线(龙华线) 会展中心站 装修图片

卓越世纪中心4号楼 地铁1号线(罗宝线) 地铁4号线(龙华线) 会展中心站 装修图片

卓越世纪中心4号楼 地铁1号线(罗宝线) 地铁4号线(龙华线) 会展中心站 装修图片

卓越世纪中心4号楼 地铁1号线(罗宝线) 地铁4号线(龙华线) 会展中心站 装修图片

卓越世纪中心4号楼 地铁1号线(罗宝线) 地铁4号线(龙华线) 会展中心站 装修图片

卓越世纪中心4号楼 地铁1号线(罗宝线) 地铁4号线(龙华线) 会展中心站 装修图片

卓越世纪中心4号楼 地铁1号线(罗宝线) 地铁4号线(龙华线) 会展中心站 装修图片

卓越世纪中心4号楼 地铁1号线(罗宝线) 地铁4号线(龙华线) 会展中心站 公共区域图片

卓越世纪中心4号楼 地铁1号线(罗宝线) 地铁4号线(龙华线) 会展中心站 公共区域图片

卓越世纪中心4号楼 地铁1号线(罗宝线) 地铁4号线(龙华线) 会展中心站 电梯厅图片

卓越世纪中心4号楼 地铁1号线(罗宝线) 地铁4号线(龙华线) 会展中心站 大堂图片

卓越世纪中心4号楼 地铁1号线(罗宝线) 地铁4号线(龙华线) 会展中心站 周边环境图片

卓越世纪中心4号楼 地铁1号线(罗宝线) 地铁4号线(龙华线) 会展中心站 外观图片

卓越世纪中心4号楼
租售中心电话:400 7165 112
图片实拍
![]() | ![]() | 版权所有: | 深圳市陆壹捌捌玖信息咨询有限公司 | ||
| 联系电话: | 0755-61967921 邮箱:abc@61889vip.com | ||||
| 通讯地址: | 深圳市福田中心区金田路与福华路交汇处金中环商务大厦群楼108C ICP备案号:粤ICP备16012531号 | ||||