大厦名称:卓越时代广场一期 | 装修:全新装修 | 朝向:西南向 |
出租面积:636平米 | 管理费:16/平米/月 | 空调:计流量 |
出租单价:188/平米/月 | 出租总价:119568/月 | 发布时间:2024/12/09 |
大厦地址:卓越时代广场位于深圳市福田区益田路4068号 高区 | 联系电话:0755-61967921 | |
卓越时代广场一期 全新装修 电梯口 福田中心区 购物公园旁 嘉里建设广场旁 甲级写字楼 出租
物业名称:卓越时代广场一期
总层高:53层
楼高:216米
出租面积:636平米
出租单价:188元/平米/月(图片实拍)
出租总价:119568元/月
出租朝向:西南向
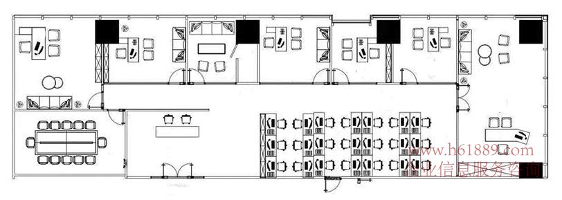
出租户型:6个办公室、一个厅
出租楼层:高区
出租状况:电梯口
管理费:16元/平方米/月
空调费:计流量
出租电话:400 7165112 (对大公司有足够优惠)
网络通讯:电信、联通、长城、铁通、移动、卫通
开发商:深圳卓越房地产公司
物业管理:深圳市卓越物业管理有限公司
物业地址:卓越时代广场位于深圳市福田区益田路4068号
【卓越时代广场房源描述】
【1】该单位全办公家私、高区景观
【2】高区、无遮挡、视野开阔
【3】采光好、户型方正实用、6个隔间、一个厅、全新装修、可配全办公家私、适合各类高品质行业风格
【4】地下停车位充足、停车便捷。
【5】诚意出租、看房方便 、全新装修、可配全办公家私、188元/平米/月、附图、图片实拍、价钱可以协商
【卓越时代广场推荐理由】
【1】深圳真正的:位于深圳CBD区、写字楼、金融业、证劵、物流业、信息服务、文化传媒集中核心区域、周边均是500强居多、便于之间交流及业务扩展
【2】交通便利:双口物业(1、4号线交汇处会展站、1号线购物公园站)广深港地下火车站高铁旁、27分种可以抵达香港中环、45分种可直达广州天河)、贯通深港澳与珠三角的经济动脉
【3】得天独厚的便捷;享受市民、少年宫、音乐厅、图书馆、水晶岛、深圳书城、莲花山公园等市政公共配套、周边商场、各大银行、餐饮、五大、Shopping mall、衣、食、住、行、运动、娱乐、休闲一体化
卓越时代广场简介
卓越时代广场占地面积:7295平方米,总建筑面积:12万平方米。其中可售建筑面积9.8万平方米,写字楼面积:82834.5平方米,商业面积1.2万平方米。高218米,地上52层,地下三层,其中地下一层与地铁人行道口相通。地下二层与南北写字楼及酒店相通。建筑外型力求达到“标志性”的效果,通过高层塔楼体量,强调立体线条的流畅及高耸入云的竖向感。裙楼采用框架结构,塔楼采用框筒结构;建筑外立面为玻璃幕墙,裙楼与塔楼过渡位置采用大玻璃相嵌的手法达到相协调统一的效果,同时充分考虑了深圳地区的气候特点。以框架、大片玻璃,幕墙三种形式互相穿透,形成空灵的效果,强调线条感及简洁大方的造型手法
大厦名称:卓越时代广场
物业级别:甲级写字楼
所属商圈:福田中心区CBD
入伙时间:2006年10月25日
使用年限:50年(2003年-2053年)
管理费:16.00元/平方米/月
空调:空调费计流量
空调类型:集中式中央空调
层高:3.6米
使用率:75%
卓越时代广场租售心
卓越时代广场租售心电话:4007165 112
租赁均价:260/平米/月起(特价单位:186元)
出售均价:7万/平米起
租售面积:106平米、145平米、166平米、215平米、237平米、278平米、312平米、366平米、380平米、430平米、465平米、507平米、638平米、688平米、968平米、1775平米、标准层面积:1900平方米(办公楼) 、面积任意组合
总楼层:地上52层、地下4层、高度218米
开发商:深圳卓越房地产公司
物业管理:深圳市卓越物业管理有限公司
卓越时代广场商业配套:东面:星河中心、皇庭广场、鼎和大厦、卓越世纪中心、财富大厦等、南面:国际商会中心、会展中心、西面:平安金融中心、购物公园、中国人寿大厦、华安保险大厦等、北面:嘉里建设广场、广深港高铁站等
酒店:四季酒店、喜来登酒店、丽思卡尔顿酒店、马可波罗好日子酒店
银行:招商银行、中国银行、建设银行、农业银行、上海浦东发展银行等
商业:星河COCO PARK、天虹商场、吉之岛购物中心
餐饮:金碧罗饭店、胜记饭店、鑫泰料理、上井精致料理等等
本项目交通十分便捷、南北两面分别是福华路和福华三路连通城市次级干道新洲路和彩田路、东西两侧益田路和金田路联接着城市南北向两条“大动脉”——深南大道和滨河大道、一号线地铁与本项目地下相同通、并设有“时代广场地铁出口”、一、购物公园地铁站、广深港高铁、换乘站近在咫尺。
卓越时代广场地铁交通
本项目交通十分便捷、南北两面分别是福华路和福华三路连通城市次级干道新洲路和彩田路、东西两侧益田路和金田路联接着城市南北向两条“大动脉”——深南大道和滨河大道、一号线地铁与本项目地下相同通、并设有“时代广场地铁出口”、一、购物公园地铁站、广深港高铁、换乘站近在咫尺。
地铁:1号线(购物公园站、购物公园站)、3号线(购物公园站)、广深港高铁站
公交:3路、373路、 398路、 b612路、 b686路、 b709路、 m223路;、m224路;、m413路(卓越时代广场站)
飞机:距深圳宝安机场30分钟车程
火车:距罗湖火车站约7公里
卓越时代广场 全新装修 电梯口 福田中心区 购物公园旁 嘉里建设广场旁 出租 卓越时代广场 户型图片

卓越时代广场 全新装修 电梯口 福田中心区 购物公园旁 嘉里建设广场旁 出租 卓越时代广场 装修图片

卓越时代广场 全新装修 电梯口 福田中心区 购物公园旁 嘉里建设广场旁 出租 卓越时代广场 装修图片

卓越时代广场 全新装修 电梯口 福田中心区 购物公园旁 嘉里建设广场旁 出租 卓越时代广场 装修图片

卓越时代广场 全新装修 电梯口 福田中心区 购物公园旁 嘉里建设广场旁 出租 卓越时代广场 装修图片

卓越时代广场 全新装修 电梯口 福田中心区 购物公园旁 嘉里建设广场旁 出租 卓越时代广场 装修图片

卓越时代广场 全新装修 电梯口 福田中心区 购物公园旁 嘉里建设广场旁 出租 卓越时代广场 装修图片

卓越时代广场 全新装修 电梯口 福田中心区 购物公园旁 嘉里建设广场旁 出租 卓越时代广场 装修图片

卓越时代广场 全新装修 电梯口 福田中心区 购物公园旁 嘉里建设广场旁 出租 卓越时代广场 装修图片

卓越时代广场 全新装修 电梯口 福田中心区 购物公园旁 嘉里建设广场旁 出租 卓越时代广场 装修图片

卓越时代广场 全新装修 电梯口 福田中心区 购物公园旁 嘉里建设广场旁 出租 卓越时代广场 装修图片

卓越时代广场 全新装修 电梯口 福田中心区 购物公园旁 嘉里建设广场旁 出租 卓越时代广场 装修图片

卓越时代广场 全新装修 电梯口 福田中心区 购物公园旁 嘉里建设广场旁 出租 卓越时代广场 装修图片

卓越时代广场 全新装修 电梯口 福田中心区 购物公园旁 嘉里建设广场旁 出租 卓越时代广场 装修图片

卓越时代广场 全新装修 电梯口 福田中心区 购物公园旁 嘉里建设广场旁 出租 卓越时代广场 装修图片

卓越时代广场 全新装修 电梯口 福田中心区 购物公园旁 嘉里建设广场旁 出租 卓越时代广场 装修图片

卓越时代广场 全新装修 电梯口 福田中心区 购物公园旁 嘉里建设广场旁 出租 卓越时代广场 装修图片

卓越时代广场 全新装修 电梯口 福田中心区 购物公园旁 嘉里建设广场旁 出租 卓越时代广场 装修图片

卓越时代广场 全新装修 电梯口 福田中心区 购物公园旁 嘉里建设广场旁 出租 卓越时代广场 公共区域 装修图片

卓越时代广场 全新装修 电梯口 福田中心区 购物公园旁 嘉里建设广场旁 出租 卓越时代广场 电梯厅 装修图片

卓越时代广场 全新装修 电梯口 福田中心区 购物公园旁 嘉里建设广场旁 出租 卓越时代广场 大堂 装修图片

卓越时代广场 全新装修 电梯口 福田中心区 购物公园旁 嘉里建设广场旁 出租 卓越时代广场 一楼大门口图片

卓越时代广场 全新装修 电梯口 福田中心区 购物公园旁 嘉里建设广场旁 出租 卓越时代广场 周边环境图片

卓越时代广场 全新装修 电梯口 福田中心区 购物公园旁 嘉里建设广场旁 出租 卓越时代广场 外观图片

卓越时代广场 福田中心区 购物公园旁 嘉里建设广场旁 写字楼 出租
![]()
![]() | ![]() | 版权所有: | 深圳市陆壹捌捌玖信息咨询有限公司 | ||
| 联系电话: | 0755-61967921 邮箱:abc@61889vip.com | ||||
| 通讯地址: | 深圳市福田中心区金田路与福华路交汇处金中环商务大厦群楼108C ICP备案号:粤ICP备16012531号 | ||||