深圳中心天元1栋租售中心 深圳中心天元1栋简介

【深圳中心•天元】300㎡+中心封面住宅 仅此唯一的住宅大平层 131席敬献中心人物

深圳中心综合体介绍
【总占地】约22万㎡
【总建面】约140万㎡
【0业态】综合体案名:深圳中心
高端住宅公寓:天元One Palace
超甲级写字楼:金地中心、大百汇广场
国际商业集群:One Avenue 卓悦中心
深圳中心•天元1栋B座介绍
【产品套数】131套
【产品面积】约313-330-533-538㎡
【交付标准】毛坯/精装修/豪华装修
【租售电话】400 7165 112
【产权年限】70年(2013年-2083年)
【发展商】深圳市金地大百汇房地产开发有限公司
【投资商】金地集团、卓越集团、大百汇集团
【物业公司】深圳市金地物业管理有限公司
深圳中心•天元 | 300㎡+中心封面住宅
【中心定制】臻席住宅,大有可为
大开发:金地、卓越、大百汇三大投资商携手,钜献全球都会生活平台

大作品:全球顶级设计团队联袂匠造

大视野:多重景观,福田CBD核心景观环绕

近揽深南大道最美景观轴

南赏星月花园森系景观

【中心藏品】300㎡+中心封面住宅,仅此唯一的纯大平层住宅
准现楼住宅预计年底交付
大风范:国际设计团队L&O担纲设计,罕有奢华石材立面,历久弥新

大格局:超百米奢阔楼间距 CBD顶豪难有的奢适体验

大气度:10m挑高大堂 凤舞九天气场自显 龙凤呈祥双辉映

大配置:私家电梯厅入户 尊享私密与奢华

大空间:动静分区格局纯粹 9m环幕瞰景客厅 60㎡五星级主卧 独享舒适宁静

【中心资产】140万㎡全球都会新中心 醇熟综合体完美兑现

城市地标:380m地标-大百汇广场&金地中心

卓悦中心北区盛大开业“居住、购物、办公、社交、逛街等一站式高效运转”的都会


《预言者》《云樽》《燕归巢》等国际大师定制艺术品 文天祥纪念馆传承岗厦文天祥文化与精神

【中心丰盛】精粹一公里,城市级全价值生活链
九大功能中心:行政•文化•金融•交通•会展•购物•酒店•公园•豪宅九大功能中心

【中心C位】全国“含金量最高”的中央商务区(CBD)
行政中心:“首善之区”,功能最核心、经济最发达、民生最幸福、文化最繁荣、环境最优美金融中心:福田地均GDP、地均税收,连续14年位居深圳首位
科技福田:国家高新技术企业达1313家、市级以上创新载体243家;年度专利授权16976件
【中心效率】咫尺超级枢纽,香港-福田高效联动,一日双城
2大综合交通枢纽(福田高铁站、岗厦北交通枢纽)
2大超级口岸(福田口岸、皇岗口岸)
2条城市东西干道(深南大道和滨河大道)+8条地铁线

【中心教育】教育强区咫尺学校,汇聚全市顶尖的教育资源
咫尺可达文天祥小学(由园岭实验集团承办),一流名师为孩子教育保驾护航
贝塞思双语学校、城市绿洲国际学校,先进教育体系,培养国际视野

【中心都会】福田3.0,深港科创融合,三大引擎赋能,打造世界级科创中心
超级都会圈:《北部都会区发展策略》规划“双城三圈”,以科创产业为重心,福田携手香港共建深港国际创新科技中心双城三圈:西圈-深圳湾优质发展圈,中圈-港深紧密互动圈,东圈-生态康乐旅游圈

三大新引擎赋能,打造首善之区高质量发展的“发动机”新引擎一:河套深港科技创新合作区,重大国家战略平台国家药监局两个分中心、深圳国际量子研究院、大湾区数字经济研究院等140余个优质项目,5所香港高校9个项目均已落地。新引擎二:香蜜湖新金融中心,全球创新资源配置枢纽新引擎三:环中心公园活力圈,公园与城市高度融合的综合开发模式

【中心服务】金地物业旗下高端服务品牌荣尚荟,金燕尾全球管理服务国际化资源落地能力,全方位保障客户安全、舒适、私密、尊享的居住空间

深圳中心•天元 纯粹大户型住宅即将登场
【1栋B座户型鉴赏】双梯入户•超9m奢阔景观面•动静分区
卧室全南向•舒适主卧套间:330㎡4房3厅4卫

卧室全南向•舒适主卧套间:313㎡3房3厅3卫

【1栋A座户型鉴赏】533㎡5房5厅6卫

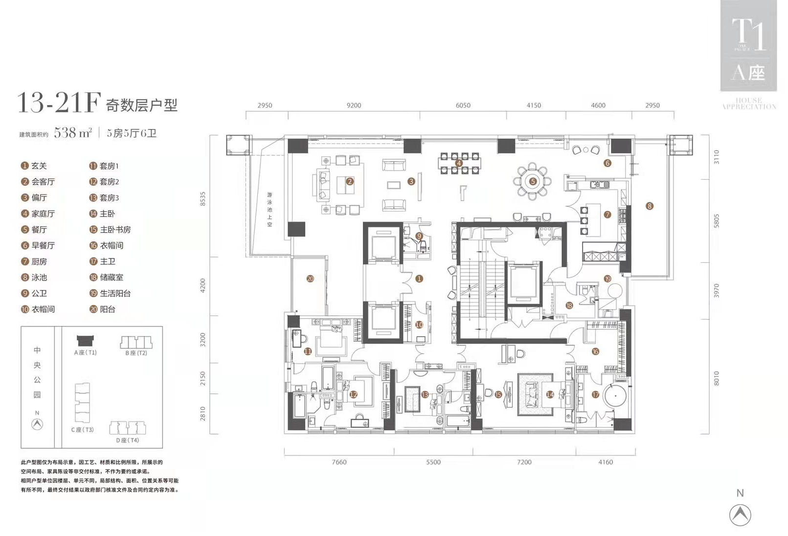
【1栋A座户型鉴赏】538㎡5房5厅6卫

深圳中心天元 无问西东 中心掌门资产
93m²-139m²-141m²-196m²-238m²-266m²-313m²-330m²-530m² 臻席租售

![]() | ![]() | 版权所有: | 深圳市陆壹捌捌玖信息咨询有限公司 | ||
| 联系电话: | 0755-61967921 邮箱:abc@61889vip.com | ||||
| 通讯地址: | 深圳市福田中心区金田路与福华路交汇处金中环商务大厦群楼108C ICP备案号:粤ICP备16012531号 | ||||