天欣大厦(西湖天欣大厦)租赁中心 天欣大厦(西湖天欣大厦)简介
大厦楼盘:天欣大厦(西湖天欣大厦)
物业类型:厂改写字楼
一楼管理费:10元/㎡/月
一楼空调费:10元/㎡/月、早上10点到晚上2点(含周六日:具体时间可以协商)
租赁面积:一楼:58平米、150平米、438平米、面积任意组合
商铺租金:均价:180元/平米/月(对大公司有足够优惠)
三到六楼:管理费:9.33元/㎡
三到六楼:空调费:9.54元/㎡;早9点到晚上6点
天欣大厦(西湖天欣大厦)租赁中心
天欣大厦(西湖天欣大厦)租赁中心电话:400 7165 112
出租租金:面议
租赁面积:65平米、80平米、98平米、107平米、120平米、150平米、140平米、160平米、212平米、310平米、503平米、560平米、692平米、719平米、1370平米、面积任意组合
物业公司:天欣物业有限公司
总楼层:6层
停车位:约:100个
停车费:月卡:900元/月/台
停车场收费标准:15分钟免费、超过15分钟:10元/小时/台、一小时后每小时加5元、一天24小时封顶35元
竣工时间:2002年9月
开发商:天欣置业
天欣大厦(西湖天欣大厦)原名:西湖汽车服务大厦、是深圳首个、精品餐饮+休闲娱乐、汽车城市展厅+写字楼办公、的新型汽车流通商业综合体、位于梅林路46号、总建筑面积达:26800平米、将为广大消费者搭建一个集美食、休闲、赏车、购车、写字楼、办公服务一体的、综合行汽车商业平台
天欣大厦(西湖天欣大厦)位于深圳-福田-上梅林-梅林路与凯丰路交汇处、离上梅林地铁站5/min步行路程、天欣大厦4-6楼为写字楼、全新精装修、户型方正、采光好、天欣大厦1楼为品牌餐饮、 2楼、3豪车展厅
天欣大厦(西湖天欣大厦)停车场的收费管理和进出口口控制系统采用小猫小猫停车的、号码自动识别+停车费移动支付、技术方案、解决了传统停车管理智能化水平低、操作程序繁琐、用户体验差等问题
天欣大厦(西湖天欣大厦)项目优势
天欣大厦(西湖天欣大厦)品牌餐饮与卓悦汇、天虹步行仅5/min,周边配套成熟、租金性价比高、与周边卓越城一期、卓越城二期、理想城、甚至保税区价格还低
天欣大厦(西湖天欣大厦)租赁中心 天欣大厦(西湖天欣大厦)简介 天欣大厦(西湖天欣大厦)交通位置图片

地铁:紧邻地铁4号线【龙华线】、9号线【梅林线】上梅林站(J1出口300平米)。高速路:北环大道、新彩隧道、南坪快速路。公交站:第二高级技工学校、档案中心、万科大厦、凯丰花园
万科大厦:60路、102路、201路、216路、218路、222路、242路、324路、334路、374路、b821路、m204路、m460路、n12路、n6路、n9路、高峰专线19路
凯丰花园:67路、102路、201路、216路、218路、222路、242路、328路、328区间线、334路、374路、b912路、m460路、n12路、n6路、高峰专线19路
天欣大厦(西湖天欣大厦)租赁中心 天欣大厦(西湖天欣大厦)简介 天欣大厦(西湖天欣大厦)一楼户型图片
恒顺名车服务、文和老友长沙龙虾馆(梅林天欣店)、芭依珊813音乐奶缇茶馆(梅林天欣店)、UNICORN WHISKY 酒吧(梅林天欣店)、探炉烤鱼(梅林天欣店)、串嘢音乐串串香火锅(梅林天欣店)、壹碗湯粉、美宜佳、

天欣大厦(西湖天欣大厦)租赁中心 天欣大厦(西湖天欣大厦)简介 天欣大厦(西湖天欣大厦)壹碗湯粉 美宜佳

天欣大厦(西湖天欣大厦)串嘢音乐串串香火锅(梅林天欣店)

西湖天欣大厦(天欣大厦)串嘢音乐串串香火锅(梅林天欣店)

天欣大厦(西湖天欣大厦)探炉烤鱼(梅林天欣店)

天欣大厦(西湖天欣大厦)探炉烤鱼(梅林天欣店)

天欣大厦(西湖天欣大厦)UNICORN WHISKY 酒吧(梅林天欣店)

天欣大厦(西湖天欣大厦)UNICORN WHISKY 酒吧(梅林天欣店)

天欣大厦(西湖天欣大厦)芭依珊813音乐奶缇茶馆(梅林天欣店)

天欣大厦(西湖天欣大厦)芭依珊813音乐奶缇茶馆(梅林天欣店)

天欣大厦(西湖天欣大厦)文和老友长沙龙虾馆(梅林天欣店)

天欣大厦(西湖天欣大厦)文和老友长沙龙虾馆(梅林天欣店)

天欣大厦(西湖天欣大厦)租赁中心 天欣大厦(西湖天欣大厦)简介 天欣大厦(西湖天欣大厦)二楼 户型图片
二层、以高端中规汽车品牌及汽车集团为主、已经进驻的商户、罗夫哈特奔驰、奥迪、等品牌

天欣大厦(西湖天欣大厦)租赁中心 天欣大厦(西湖天欣大厦)简介 天欣大厦(西湖天欣大厦)二楼 装修图片 动态图片

天欣大厦(西湖天欣大厦)租赁中心 天欣大厦(西湖天欣大厦)简介 天欣大厦(西湖天欣大厦)三楼 户型图片
三层、进驻的优质商家有、聚星汇名车、宝城名车、车仕堡名车、利星名车等、具备多年豪车的进口、销售及服务经验、将为消费者提供积累平行进口车的展示、销售、定制等一站式豪车购车服务

天欣大厦(西湖天欣大厦)租赁中心 天欣大厦(西湖天欣大厦)简介 天欣大厦(西湖天欣大厦)三楼 装修图片 动态图片

天欣大厦(西湖天欣大厦)租赁中心 天欣大厦(西湖天欣大厦)简介 天欣大厦(西湖天欣大厦)四楼 户型图片

天欣大厦(西湖天欣大厦)租赁中心 天欣大厦(西湖天欣大厦)简介 天欣大厦(西湖天欣大厦)五楼 户型图片

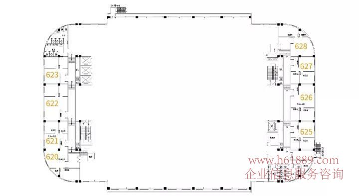
天欣大厦(西湖天欣大厦)租赁中心 天欣大厦(西湖天欣大厦)简介 天欣大厦(西湖天欣大厦)六楼 户型图片

天欣大厦(西湖天欣大厦)租赁中心 天欣大厦(西湖天欣大厦)简介 天欣大厦(西湖天欣大厦)六楼 坡道户型图片

天欣大厦(西湖天欣大厦)四楼 五楼 6楼 公共区域装修图片 动态图片

天欣大厦(西湖天欣大厦)租赁中心 天欣大厦(西湖天欣大厦)简介 天欣大厦(西湖天欣大厦)四楼 五楼 6楼 装修图片

天欣大厦(西湖天欣大厦)租赁中心 天欣大厦(西湖天欣大厦)简介 天欣大厦(西湖天欣大厦)四楼 五楼 6楼 装修图片

天欣大厦(西湖天欣大厦)租赁中心 天欣大厦(西湖天欣大厦)简介 天欣大厦(西湖天欣大厦)四楼 五楼 6楼 装修图片

天欣大厦(西湖天欣大厦)租赁中心 天欣大厦(西湖天欣大厦)简介 天欣大厦(西湖天欣大厦)四楼 五楼 6楼 装修图片
天欣大厦(西湖天欣大厦)租赁中心 天欣大厦(西湖天欣大厦)简介 天欣大厦(西湖天欣大厦)四楼 五楼 6楼 装修图片

天欣大厦(西湖天欣大厦)租赁中心 天欣大厦(西湖天欣大厦)简介 天欣大厦(西湖天欣大厦)四楼 五楼 6楼 装修图片

天欣大厦(西湖天欣大厦)租赁中心 天欣大厦(西湖天欣大厦)简介 天欣大厦(西湖天欣大厦)四楼 五楼 6楼 装修图片

天欣大厦(西湖天欣大厦)租赁中心 天欣大厦(西湖天欣大厦)简介 天欣大厦(西湖天欣大厦)四楼 五楼 6楼 装修图片

天欣大厦(西湖天欣大厦)租赁中心 天欣大厦(西湖天欣大厦)简介 天欣大厦(西湖天欣大厦)电梯厅图片

天欣大厦(西湖天欣大厦)租赁中心 天欣大厦(西湖天欣大厦)简介 天欣大厦(西湖天欣大厦)大堂图片

天欣大厦(西湖天欣大厦)租赁中心 天欣大厦(西湖天欣大厦)简介 天欣大厦(西湖天欣大厦)周边环境图片

天欣大厦(西湖天欣大厦)租赁中心 天欣大厦(西湖天欣大厦)简介 天欣大厦(西湖天欣大厦)一楼大门口图片

天欣大厦(西湖天欣大厦)租赁中心 天欣大厦(西湖天欣大厦)简介 天欣大厦(西湖天欣大厦)外观图片

天欣大厦(西湖天欣大厦)
租赁中心电话:400 7165 112
图片实拍
![]() | ![]() | 版权所有: | 深圳市陆壹捌捌玖信息咨询有限公司 | ||
| 联系电话: | 0755-61967921 邮箱:abc@61889vip.com | ||||
| 通讯地址: | 深圳市福田中心区金田路与福华路交汇处金中环商务大厦群楼108C ICP备案号:粤ICP备16012531号 | ||||